Παράκαμψη προς το κυρίως περιεχόμενο
Περιγραφή Έργου

Ανακαλύψτε την Αστική Πολυτέλεια

  • Ιδανικά τοποθετημένο σε μία από τις πιο ζωντανές περιοχές της Λεμεσού, αυτό το οικιστικό έργο προσφέρει την τέλεια ισορροπία ανάμεσα στην αστική ζωή και τη γαλήνια πολυτέλεια. Παρόλο που βρίσκεται σε μια ήσυχη οικιστική γειτονιά, παραμένει στην καρδιά της πόλης, μόλις λίγα λεπτά από τη γνωστή Μαρίνα Λεμεσού και το ιστορικό κέντρο.
  • Το Park Horizon εκτείνεται σε 4 εντυπωσιακούς ορόφους, προσφέροντας το ιδανικό ύψος για το κέντρο της πόλης. Με μια σύγχρονη και πολυτελή πρόσοψη, το κτήριο εντυπωσιάζει με την αρμονική σύνθεση υψηλής ποιότητας ξύλινων επενδύσεων και σκούρων αποχρώσεων ενισχυμένης πέτρας.
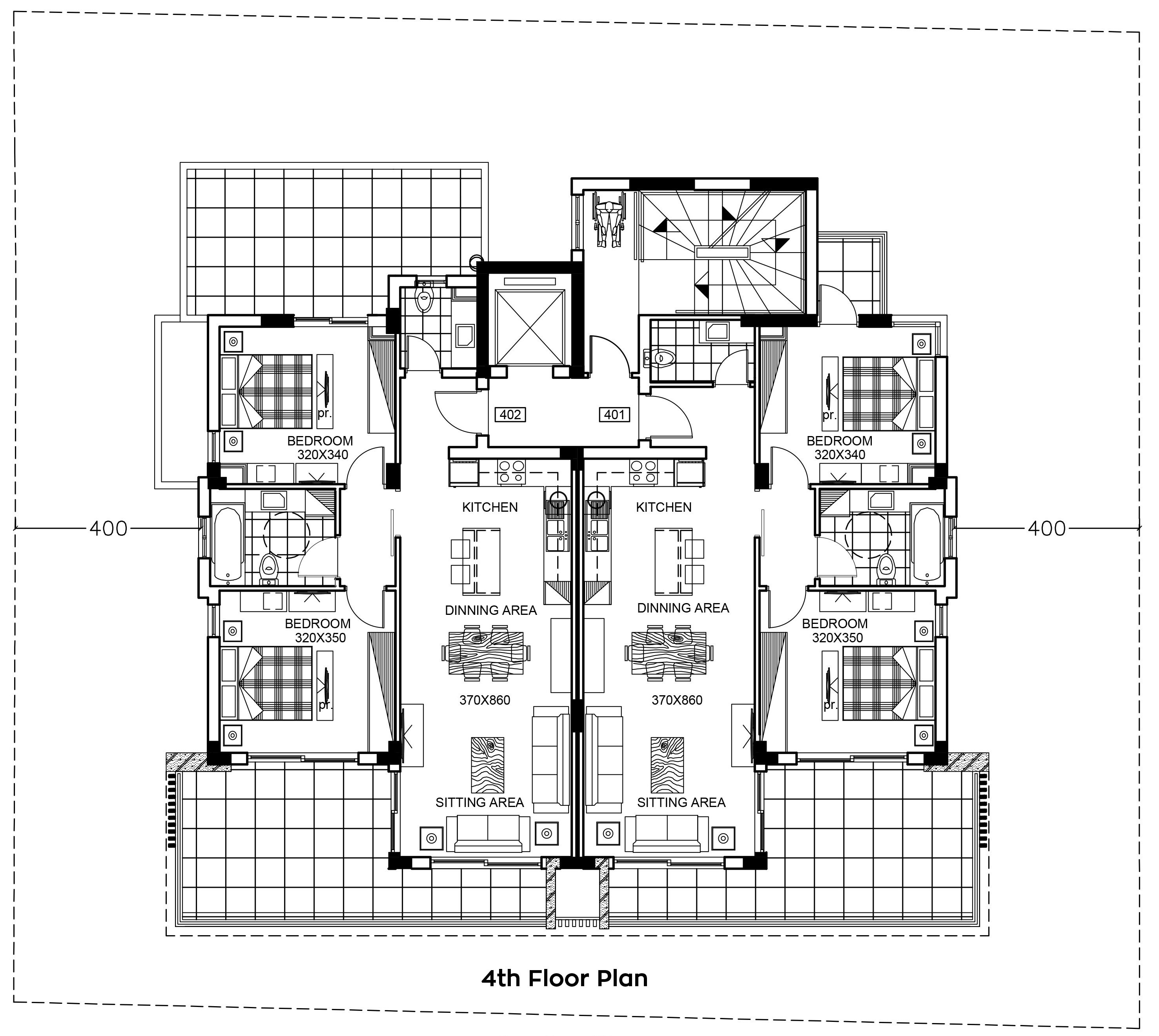
  • Το Park Horizon προσφέρει οκτώ ευρύχωρα και σύγχρονα διαμερίσματα, με προσεγμένο σχεδιασμό που ανανεώνει την αίσθηση του χώρου και του στιλ.
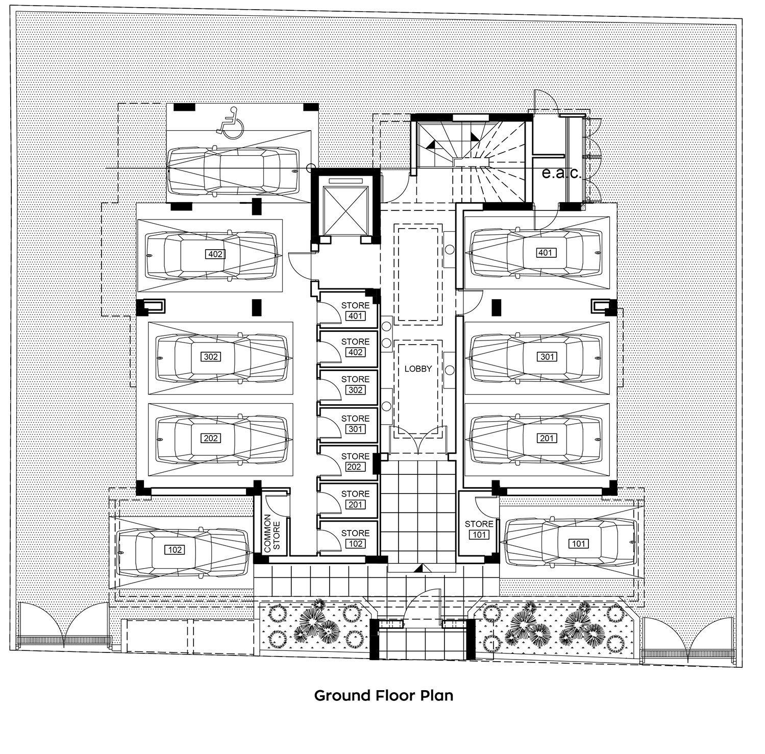
Κατόψεις
Ζητήστε Περισσότερες Πληροφορίες
Η διεύθυνση email σας δεν θα δημοσιευτεί. Τα υποχρεωτικά πεδία σημειώνονται με *
Δίνω τη συγκατάθεσή μου για την επεξεργασία των προσωπικών μου δεδομένων και αποδέχομαι τους όρους και τις προϋποθέσεις.