Παράκαμψη προς το κυρίως περιεχόμενο
Περιγραφή Έργου

Στην Καρδιά του Επόμενου Μεγάλου Προορισμού της Λεμεσού
Καλωσορίσατε στο Oasis Sun Gardens – ένα έργο σε μια από τις πιο ραγδαία αναπτυσσόμενες και ανερχόμενες περιοχές της Λεμεσού, το οποίο σας τοποθετεί κυριολεκτικά στην καρδιά του μέλλοντος της πόλης. Σε κοντινή απόσταση βρίσκεται το παγκόσμιας κλάσης City of Dreams Mediterranean Resort & Casino, όπου η ψυχαγωγία, η υψηλή γαστρονομία και η χαλάρωση συναντώνται. Δίπλα, το MY MALL προσφέρει αμέτρητες επιλογές για αγορές και φαγητό, διευκολύνοντας την καθημερινότητά σας με τα πάντα μόλις λίγα λεπτά από το σπίτι σας. Με εξαιρετικά σχολεία στην περιοχή, το εντυπωσιακό γήπεδο γκολφ Limassol Greens, αλλά και εύκολη πρόσβαση στο κέντρο της πόλης και τη ζωντανή Λιμανούδα Λεμεσού, η τοποθεσία του Oasis Sun Gardens προσφέρει τον απόλυτο συνδυασμό προαστιακής ζωής και αστικής άνεσης — ένα ιδανικό μέρος για να αποκαλείτε «σπίτι», καθώς η γειτονιά συνεχίζει να αναπτύσσεται.

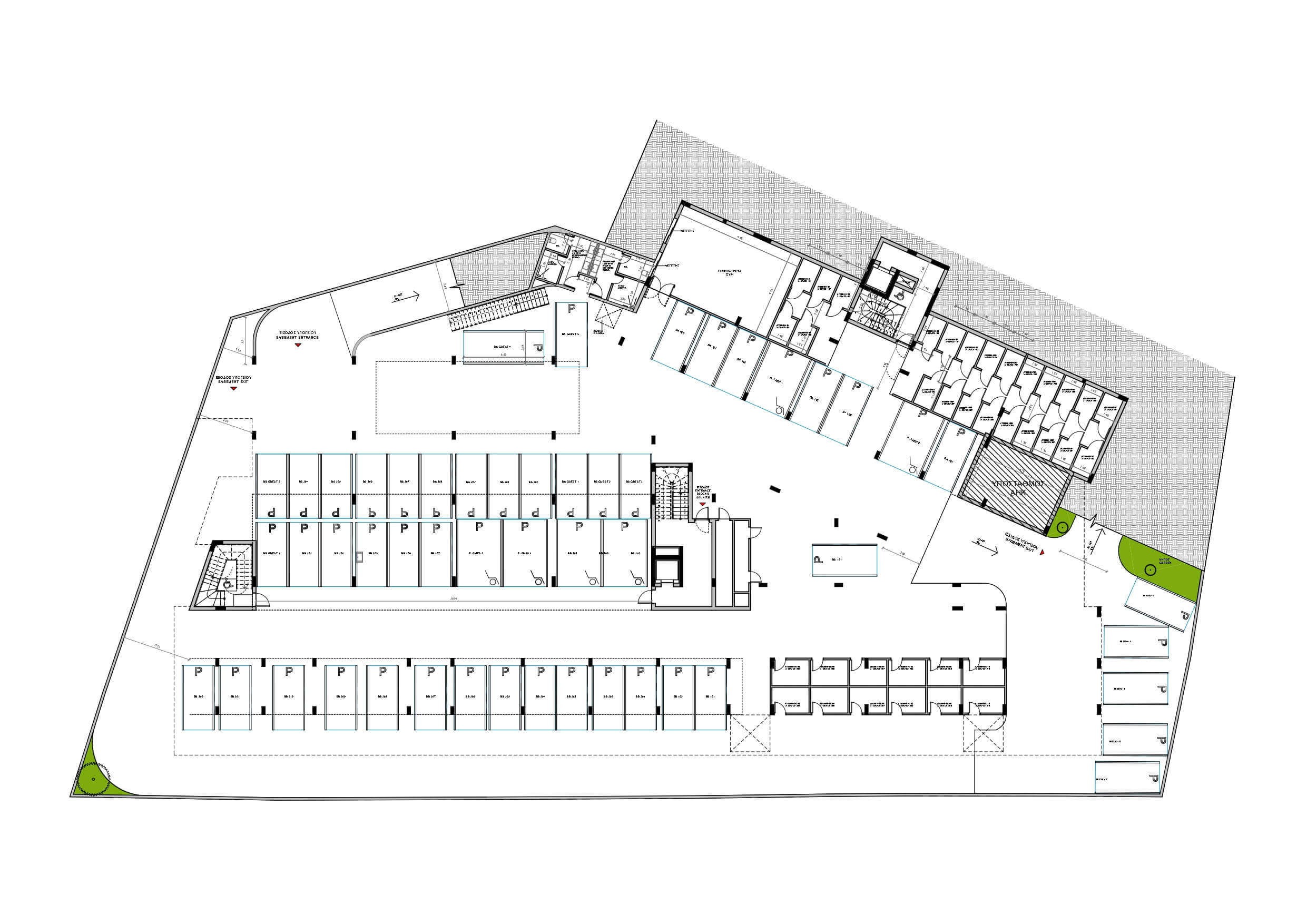
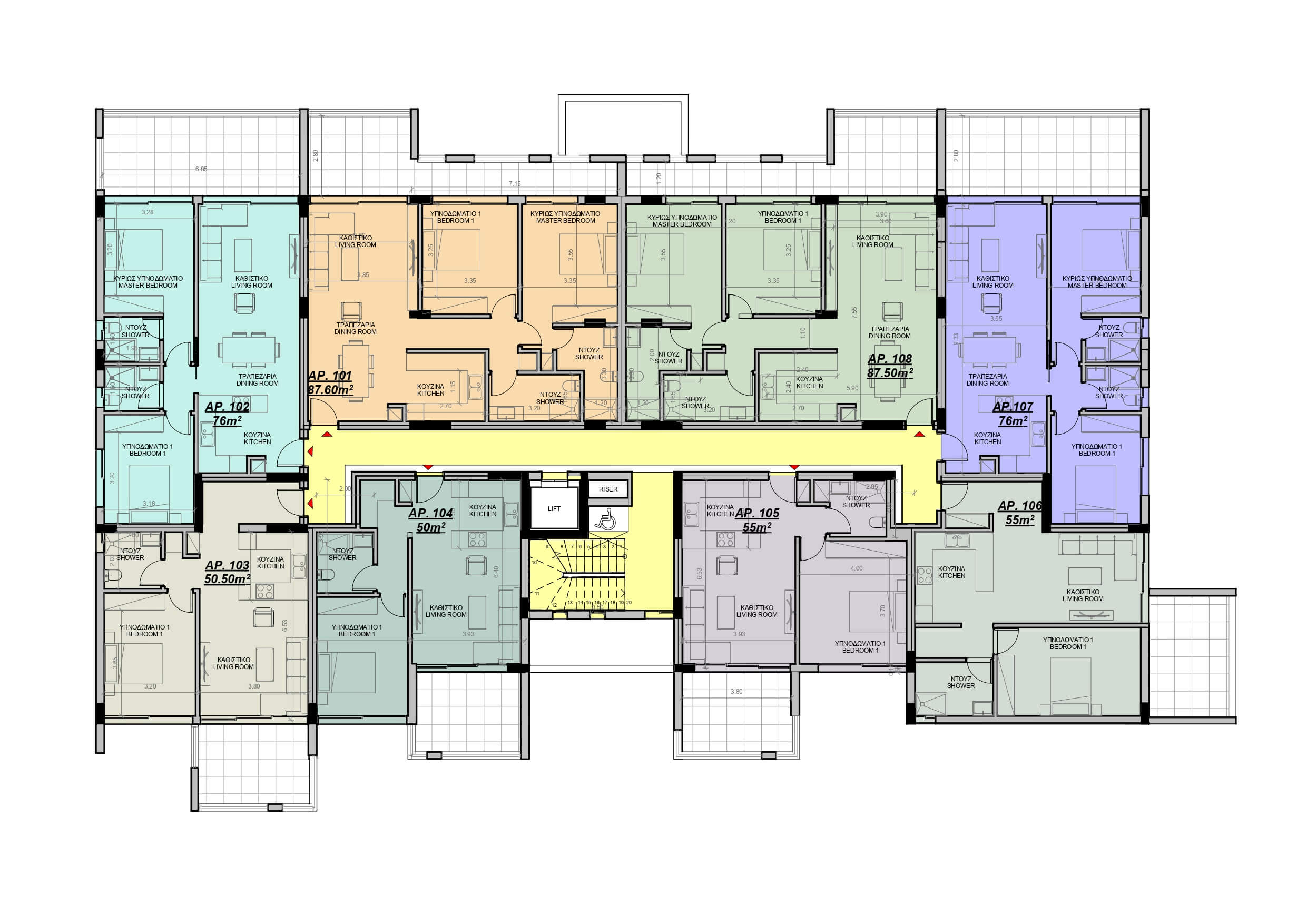
Αποτελούμενο από διώροφα κτήρια, το αποκλειστικό αυτό οικιστικό συγκρότημα περιλαμβάνει μια προσεκτικά επιλεγμένη συλλογή από 20 διαμερίσματα δύο υπνοδωματίων και 26 διαμερίσματα ενός υπνοδωματίου. Κάθε κατοικία αποτελεί δείγμα σύγχρονου σχεδιασμού, με ευρύχωρους, φωτεινούς εσωτερικούς χώρους που οδηγούν απρόσκοπτα σε ιδιωτικά μπαλκόνια, προσφέροντας την ιδανική ισορροπία εσωτερικής και εξωτερικής διαβίωσης. Φανταστείτε να ξεκινάτε τα πρωινά σας με μια αναζωογονητική βουτιά στη μεγάλη κοινόχρηστη πισίνα, περιτριγυρισμένη από όμορφα διαμορφωμένους κήπους, ή να γυμνάζεστε στο πλήρως εξοπλισμένο γυμναστήριο πριν ξεκινήσετε τις δραστηριότητές σας. Από την υπόγεια στάθμευση έως τους εκτεταμένους πράσινους χώρους, κάθε λεπτομέρεια στο Oasis Sun Gardens έχει σχεδιαστεί για τη δική σας άνεση και εξυπηρέτηση.

Κατόψεις
Ζητήστε Περισσότερες Πληροφορίες
Η διεύθυνση email σας δεν θα δημοσιευτεί. Τα υποχρεωτικά πεδία σημειώνονται με *
Δίνω τη συγκατάθεσή μου για την επεξεργασία των προσωπικών δεδομένων και αποδέχομαι τους όρους και τις προϋποθέσεις..