Παράκαμψη προς το κυρίως περιεχόμενο
Περιγραφή Έργου

Τοποθετημένο στον πολυσύχναστο παραλιακό πεζόδρομο, με ανεμπόδιστη θέα στην ακτογραμμή της Λεμεσού, το Limassol Corniche είναι η νέα άφιξη που σίγουρα θα εντυπωσιάσει. Με πρόσοψη σε κυματιστή μορφή, εμπνευσμένη από τις ακτές της Λεμεσού, το πενταώροφο κτήριο μικτής χρήσης Limassol Corniche φιλοξενεί ευρύχωρες, μοντέρνες κατοικίες στους 3 επάνω ορόφους και γραφεία ανοικτής διάταξης στον 1ο και 2ο όροφο, καθώς και στο ισόγειο και τον μεσώροφο.

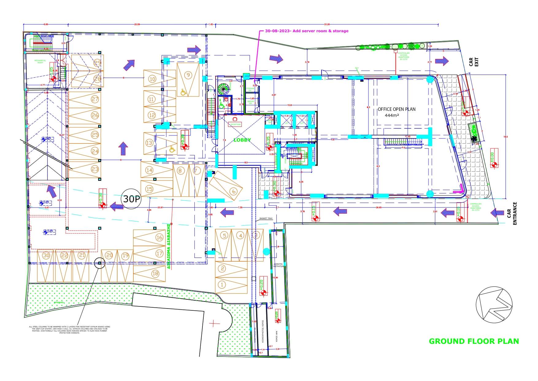
Το ισόγειο γραφείο και ο αντίστοιχος μεσώροφος περιλαμβάνουν τουαλέτες και κουζινάκια. Ο μεσώροφος βρίσκεται στο μπροστινό μέρος του κτηρίου, προσφέροντας θέα στη θάλασσα και φυσικό φως. Το γραφείο μπορεί να χρησιμοποιηθεί ως δύο ξεχωριστοί χώροι, καθένας με δική του πρόσβαση προς τον μεσοώροφο, ή ως ενιαίος χώρος. Το ισόγειο και ο μεσώροφος συνοδεύονται από 11 θέσεις στάθμευσης.

Ο πρώτος και ο δεύτερος όροφος διαθέτουν κατά κύριο λόγο ενιαία διάταξη, προσφέροντας ευελιξία στη διαμόρφωση θέσεων εργασίας ή άλλων λειτουργικών αναγκών, με τις περισσότερες περιοχές να έχουν απρόσκοπτη θέα στη θάλασσα και άφθονο φυσικό φως. Κάθε όροφος διαθέτει 10 θέσεις στάθμευσης.

Με μοντέρνο αρχιτεκτονικό σχεδιασμό που μιμείται τις κινήσεις της παλίρροιας, το Limassol Corniche αποτελεί την επιτομή της σύγχρονης αρχιτεκτονικής.

Κατόψεις
Ζητήστε Περισσότερες Πληροφορίες
Η διεύθυνση email σας δεν θα δημοσιευτεί. Τα υποχρεωτικά πεδία σημειώνονται με *
Δίνω τη συγκατάθεσή μου για την επεξεργασία των προσωπικών μου δεδομένων και αποδέχομαι τους όρους και τις προϋποθέσεις.