Παράκαμψη προς το κυρίως περιεχόμενο
Περιγραφή Έργου

Ένας Πύργος Γραφείων υπό μελέτη στη Λεωφόρο Κολωνακίου, σε κεντρική τοποθεσία με άμεση πρόσβαση στον αυτοκινητόδρομο και μόλις 1 λεπτό με το αυτοκίνητο από τη θάλασσα.
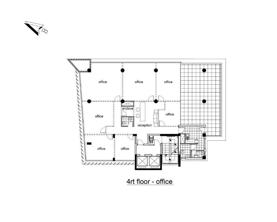
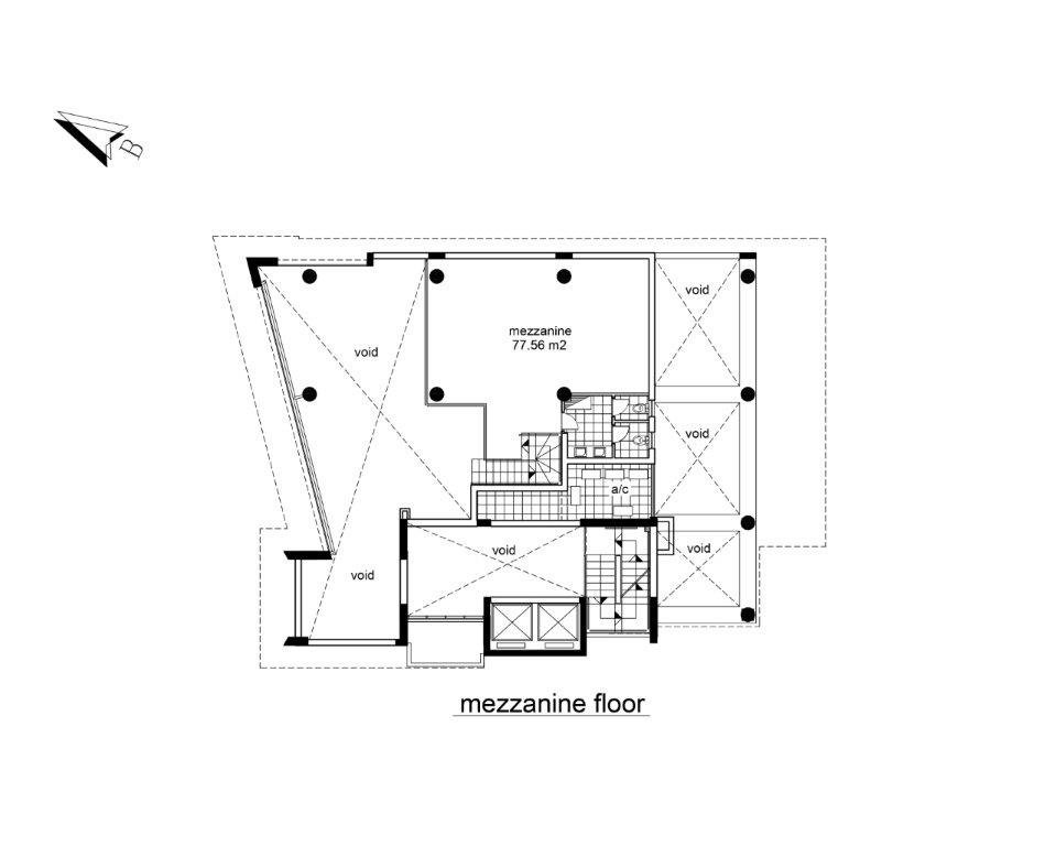
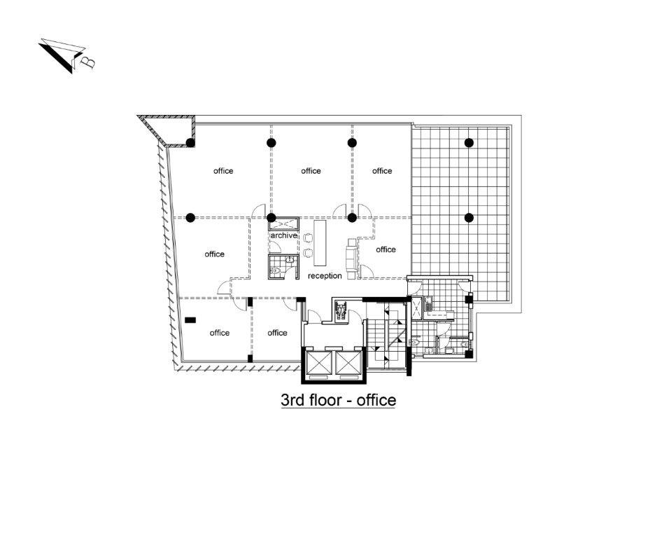
Το έργο περιλαμβάνει χώρο γραφείων στο ισόγειο με μεσώροφο και χώρο υποδοχής στην είσοδο, καθώς και 4 τυπικούς ορόφους με χώρο υποδοχής.

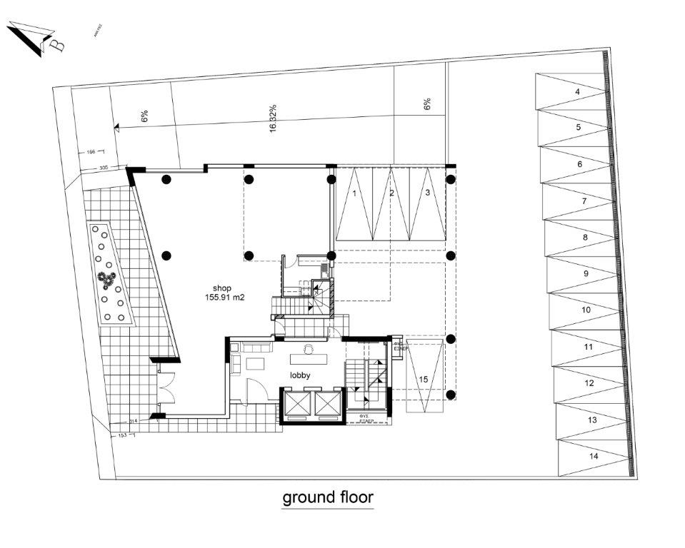
Ισόγειο + Μεσώροφος: 234 τ.μ.
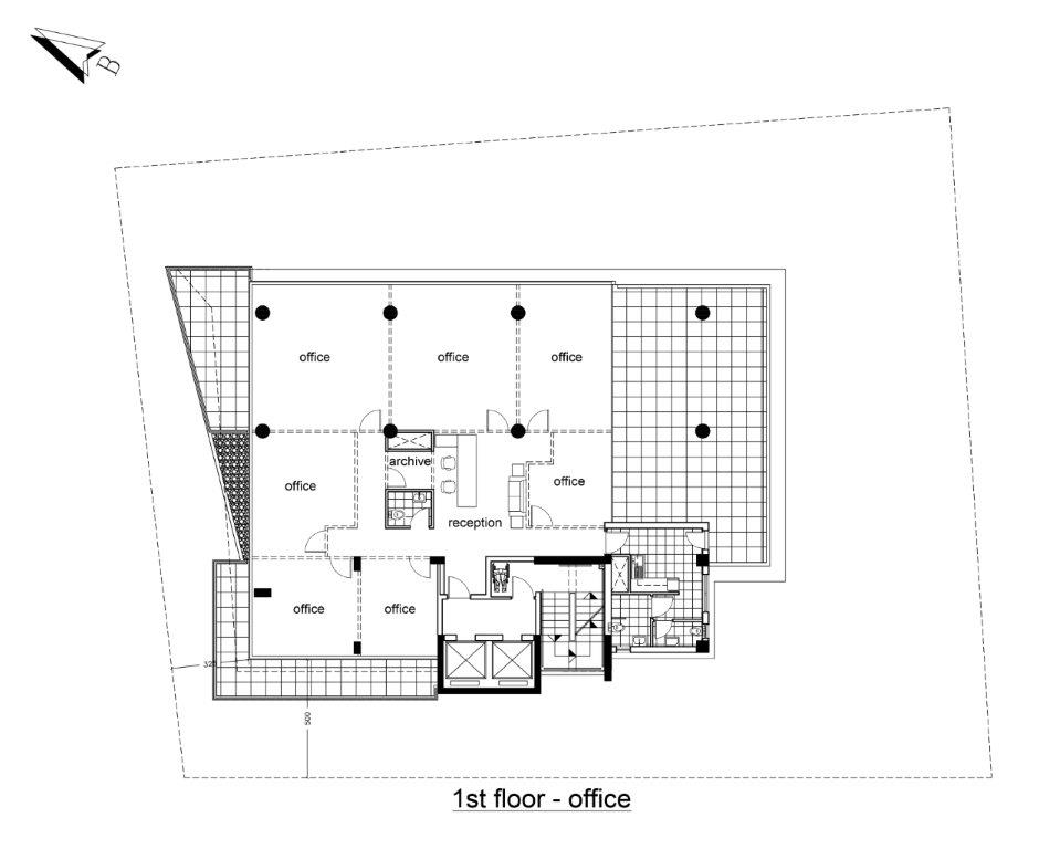
1ος Όροφος: Καλυμμένος Χώρος 277 τ.μ. + Καλυμμένη Βεράντα 90 τ.μ.
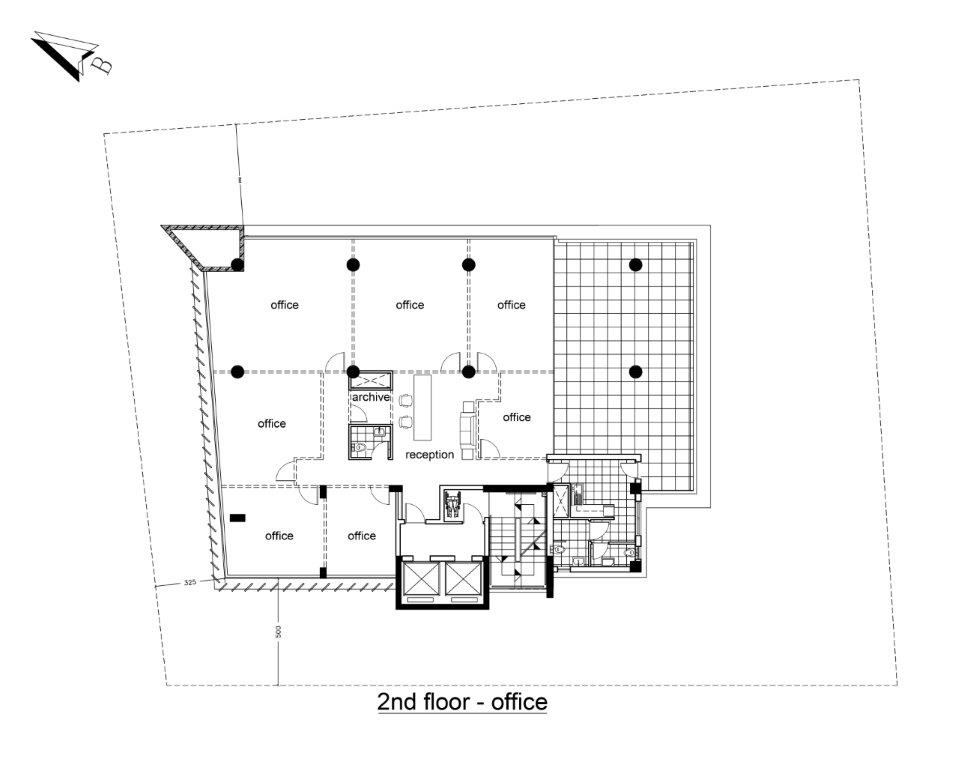
2ος, 3ος + 4ος Όροφος: Καλυμμένος Χώρος 284 τ.μ. + Καλυμμένη Βεράντα 72 τ.μ.
Συνολική Επιφάνεια: 1.805 τ.μ.
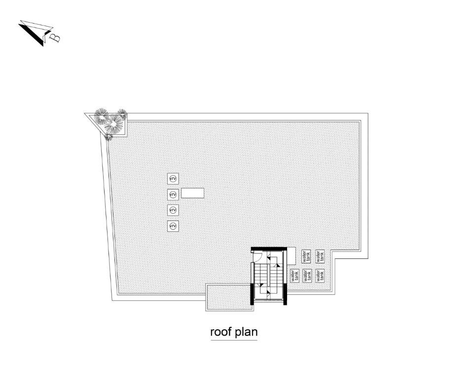
Δώμα: 16 τ.μ.
Καλυμμένες Βεράντες: 305 τ.μ.
Lobby: 121 τ.μ.
Υπόγειο: 678 τ.μ.
Κάθε όροφος περιλαμβάνει 7 γραφεία και χώρο υποδοχής.
Καλυμμένος Χώρος Στάθμευσης: 33 θέσεις στάθμευσης

Κατόψεις
Ζητήστε Περισσότερες Πληροφορίες
Η διεύθυνση email σας δεν θα δημοσιευτεί. Τα υποχρεωτικά πεδία σημειώνονται με *
Δίνω τη συγκατάθεσή μου για την επεξεργασία των προσωπικών δεδομένων και αποδέχομαι τους όρους και τις προϋποθέσεις..