Παράκαμψη προς το κυρίως περιεχόμενο
Περιγραφή Έργου
ΠΩΛΗΘΗΚΕ
  • Ένα αποκλειστικό, σύγχρονο και πολυτελές οικιστικό κτήριο, σε προνομιακή τοποθεσία στη Γερμασόγεια. Με μόλις πέντε διαμερίσματα, αυτή η μικρής κλίμακας ανάπτυξη προσφέρει απαράμιλλη ιδιωτικότητα και κομψότητα.

  • Το κτήριο αποτελείται από πέντε ευρύχωρα διαμερίσματα, κατανεμημένα αρμονικά σε τρεις ορόφους, με ένα ρετιρέ στον τρίτο όροφο. Σε κάθε όροφο βρίσκονται ένα διαμέρισμα τριών υπνοδωματίων και ένα διαμέρισμα δύο υπνοδωματίων, ενώ στον τρίτο όροφο βρίσκεται ένα μεγάλο ρετιρέ τριών υπνοδωματίων.

  • Κάθε διαμέρισμα τριών υπνοδωματίων διαθέτει κύριο υπνοδωμάτιο με δικό του μπάνιο.

  • Το εσωτερικό κάθε κατοικίας αποτελείται από υλικά υψηλών προδιαγραφών, με λαμπερά δάπεδα και πάγκους από μάρμαρο, καθώς και εξοπλισμό υψηλής ποιότητας σε όλους τους χώρους. Μεγάλες μπαλκονόπορτες οδηγούν σε ευρύχωρα μπαλκόνια, επιτρέποντας στο μεσογειακό φως να πλημμυρίσει τους εσωτερικούς χώρους.

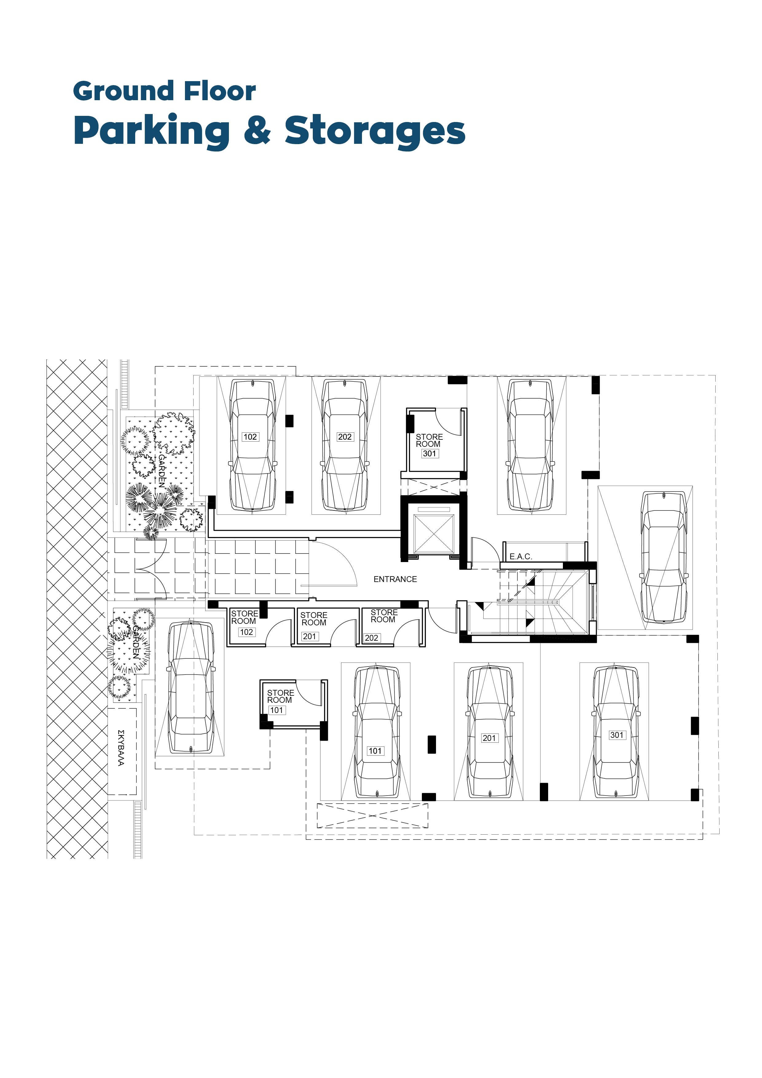
Κατόψεις
Ζητήστε Περισσότερες Πληροφορίες
Η διεύθυνση email σας δεν θα δημοσιευτεί. Τα υποχρεωτικά πεδία σημειώνονται με *
Δίνω τη συγκατάθεσή μου για την επεξεργασία των προσωπικών μου δεδομένων και αποδέχομαι τους όρους και τις προϋποθέσεις.