Παράκαμψη προς το κυρίως περιεχόμενο
Περιγραφή Έργου
ΠΩΛΗΘΗΚΕ

Παρουσιάζουμε τον KRIEL Tower – εκεί όπου η πολυτέλεια συναντά την ιδανική τοποθεσία. Τοποθετημένος στρατηγικά ανάμεσα στη Λεωφόρο Κολωνακίου και την τουριστική περιοχή της Λεμεσού, αυτό το εμπορικό αριστούργημα προσφέρει απαράμιλλη θέα στην εντυπωσιακή ακτογραμμή της πόλης. Ο KRIEL Tower ορίζει την κορυφή της πολυτέλειας και της κομψότητας, αποτελώντας μια κορυφαία επενδυτική ευκαιρία στο επιχειρηματικό κέντρο της Λεμεσού – του σημαντικότερου επιχειρηματικού κέντρου της Κύπρου.

Τοποθεσία του Έργου

  • Στρατηγική κεντρική τοποθεσία στη Μεσόγειο, η οποία διευκολύνει το παγκόσμιο εμπόριο και τις διεθνείς συνδέσεις.
  • Εγγύτητα σε σημαντικές αγορές, προηγμένες υποδομές μεταφορών και εύκολη πρόσβαση σε διεθνή αεροδρόμια.
  • Οικονομική ζωντάνια της περιοχής: Δυναμικό οικονομικό περιβάλλον με ακμάζοντες τομείς όπως τα χρηματοοικονομικά, η ναυτιλία, η αγορά ακινήτων και η τεχνολογία.

Προοπτικές Επενδυτικής Απόδοσης

  • Αναμενόμενη αύξηση της αξίας του ακινήτου λόγω της αναπτυξιακής πορείας της πόλης και της περιορισμένης διαθεσιμότητας εμπορικών χώρων.
  • Ελκυστική αγορά για εμπορικές ενοικιάσεις, προσελκύοντας επιχειρήσεις που αναζητούν αναγνωρίσιμες επαγγελματικές διευθύνσεις.
  • Διαθεσιμότητα σύγχρονων και άρτια σχεδιασμένων επαγγελματικών χώρων σε προνομιακές τοποθεσίες, καθιστώντας τη Λεμεσό ιδανική επιλογή για μακροπρόθεσμη αξία και απόδοση.

Περιγραφή Έργου

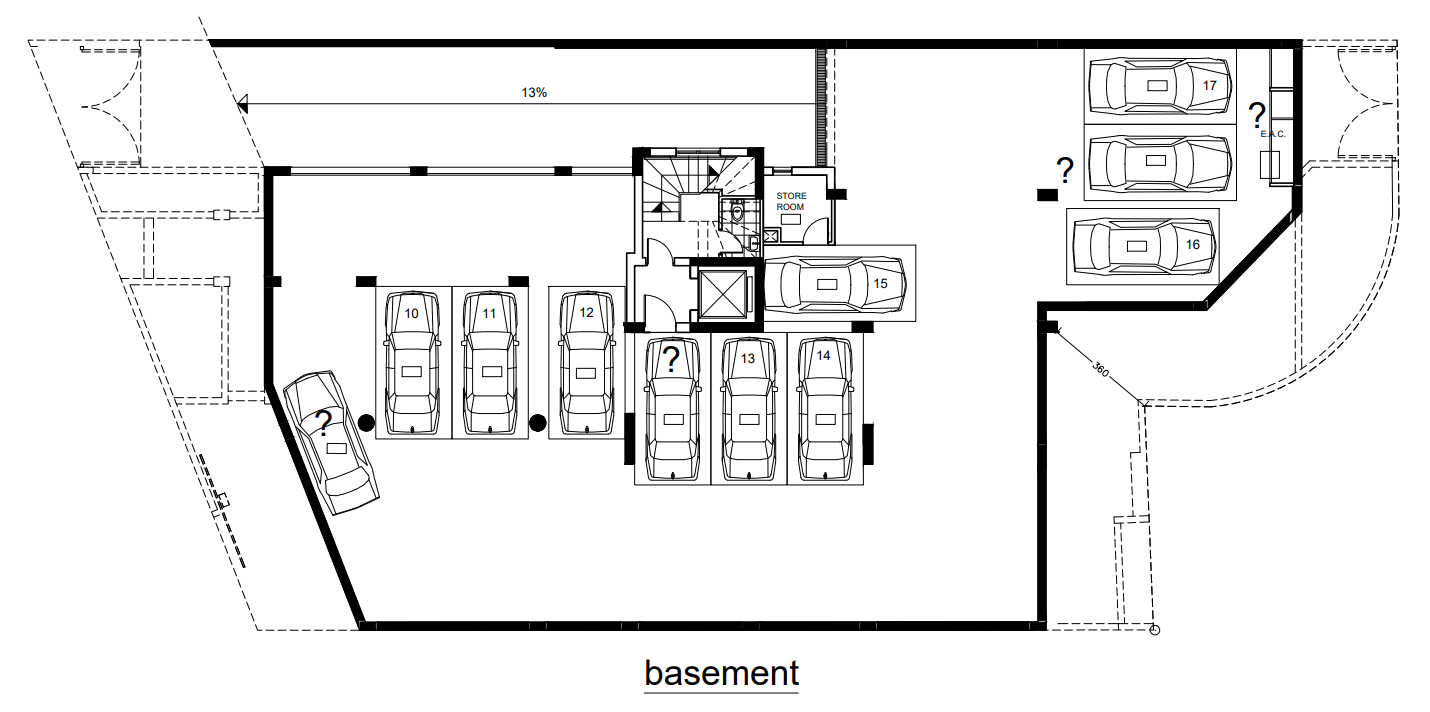
  • Υπόγειο, ισόγειο και 4 τυπικοί όροφοι
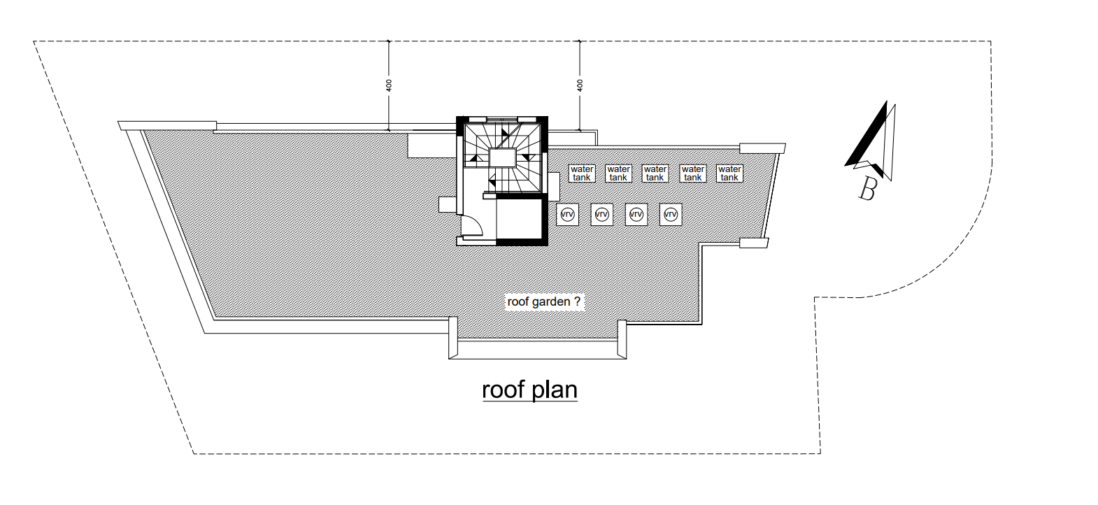
  • Roof garden για επαγγελματικές συναντήσεις, χαλάρωση και πανοραμική θέα

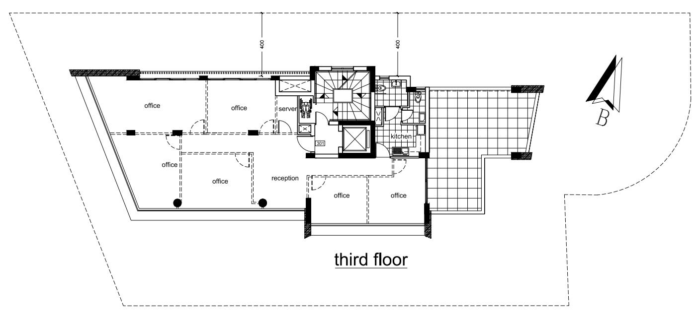
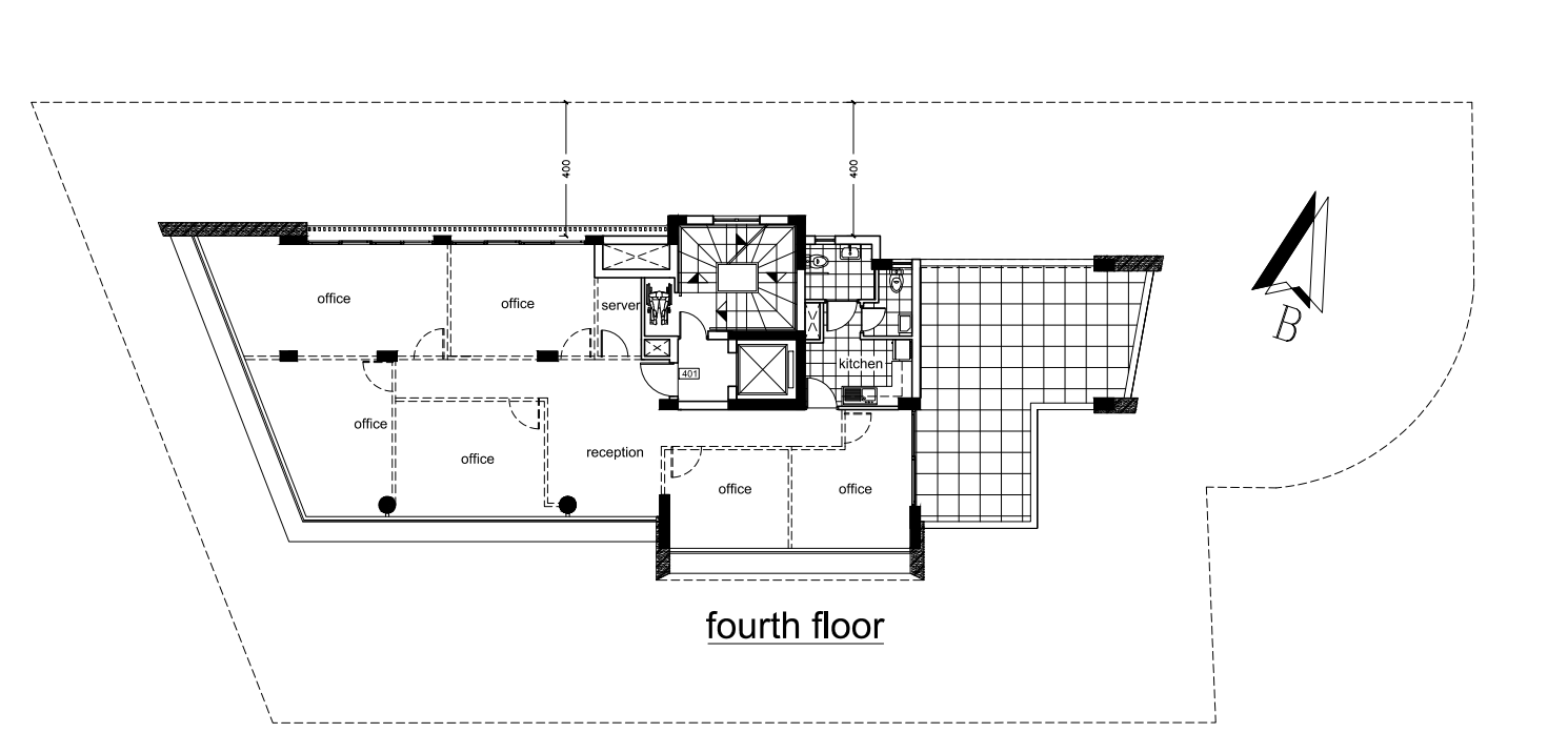
Ανάλυση Ορόφων

  • Κάθε όροφος: 181,30 τ.μ. με 42,18 τ.μ. καλυμμένη βεράντα
  • Διάταξη: 6 γραφεία και χώρος υποδοχής
  • Συνολική καλυμμένη επιφάνεια: 1.032,58 τ.μ.
Κατόψεις
Ζητήστε Περισσότερες Πληροφορίες
Η διεύθυνση email σας δεν θα δημοσιευτεί. Τα υποχρεωτικά πεδία σημειώνονται με *
Δίνω τη συγκατάθεσή μου για την επεξεργασία των προσωπικών δεδομένων και αποδέχομαι τους όρους και τις προϋποθέσεις..