Παράκαμψη προς το κυρίως περιεχόμενο
Περιγραφή Έργου

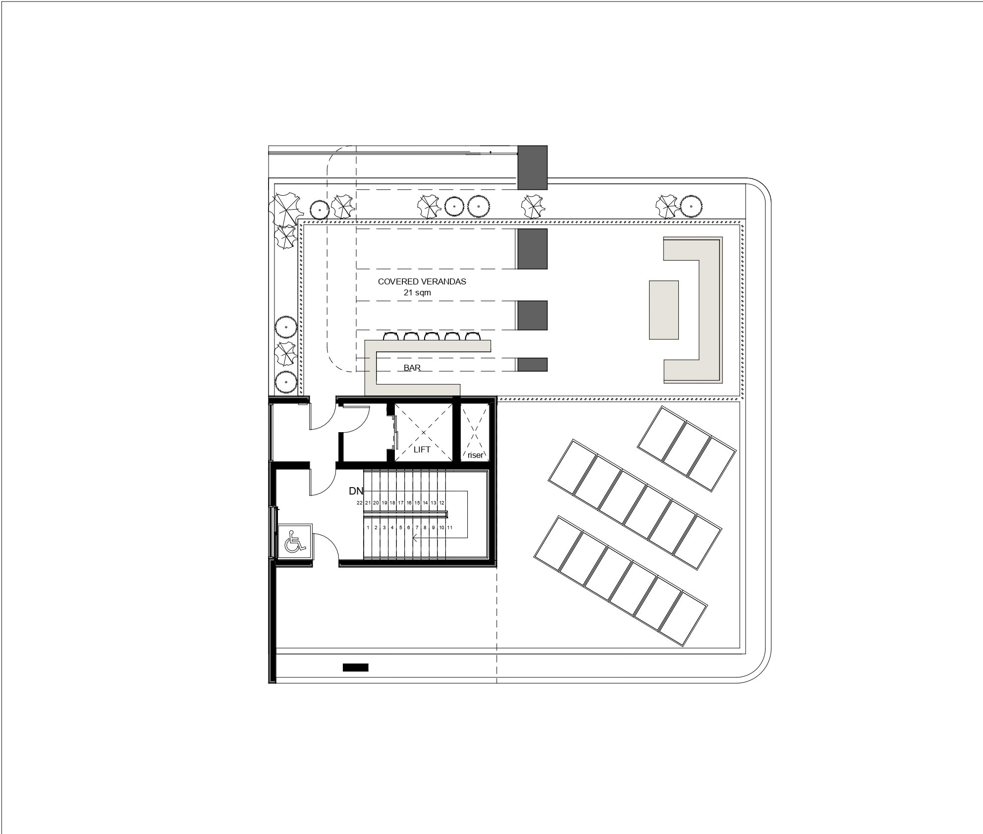
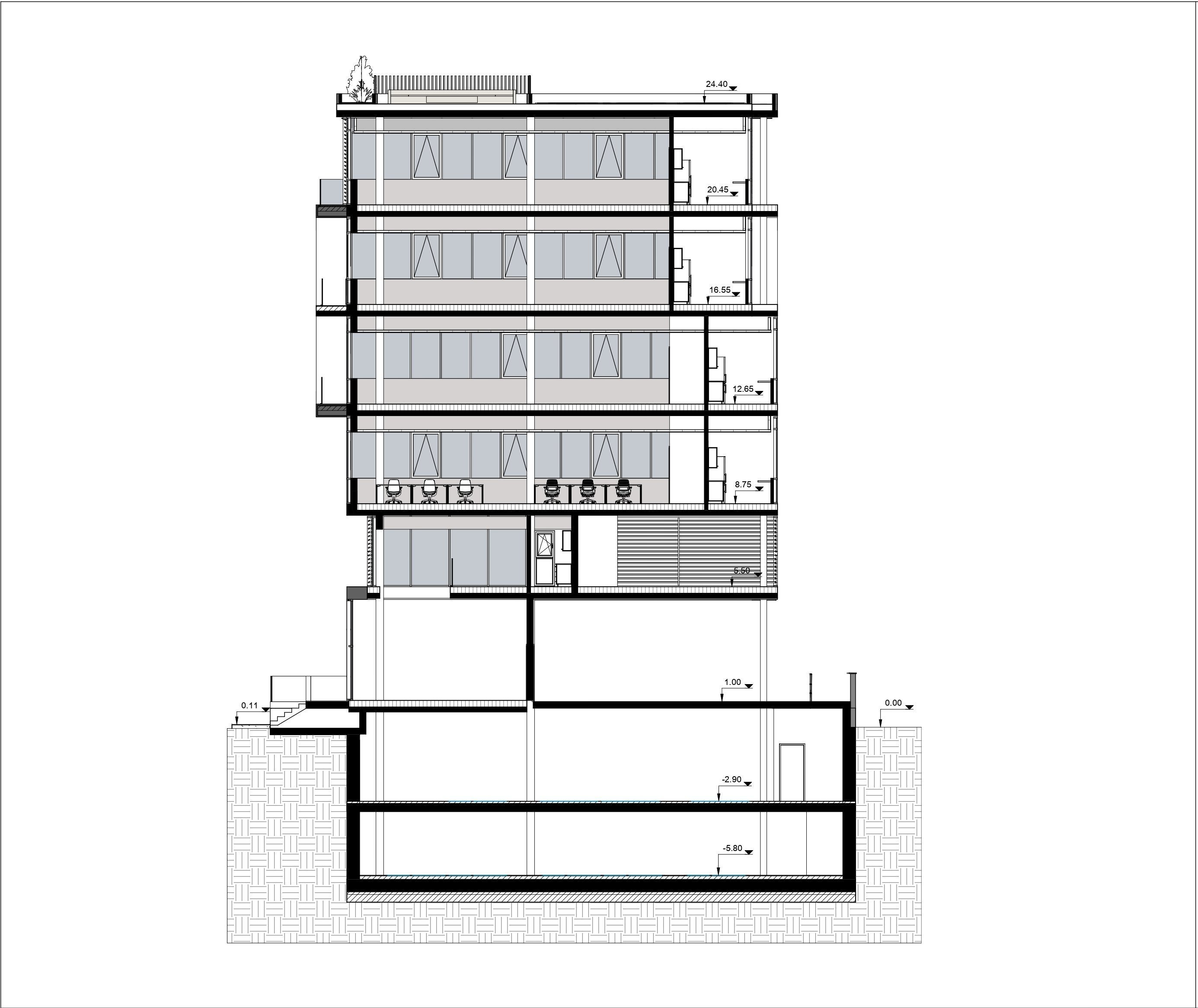
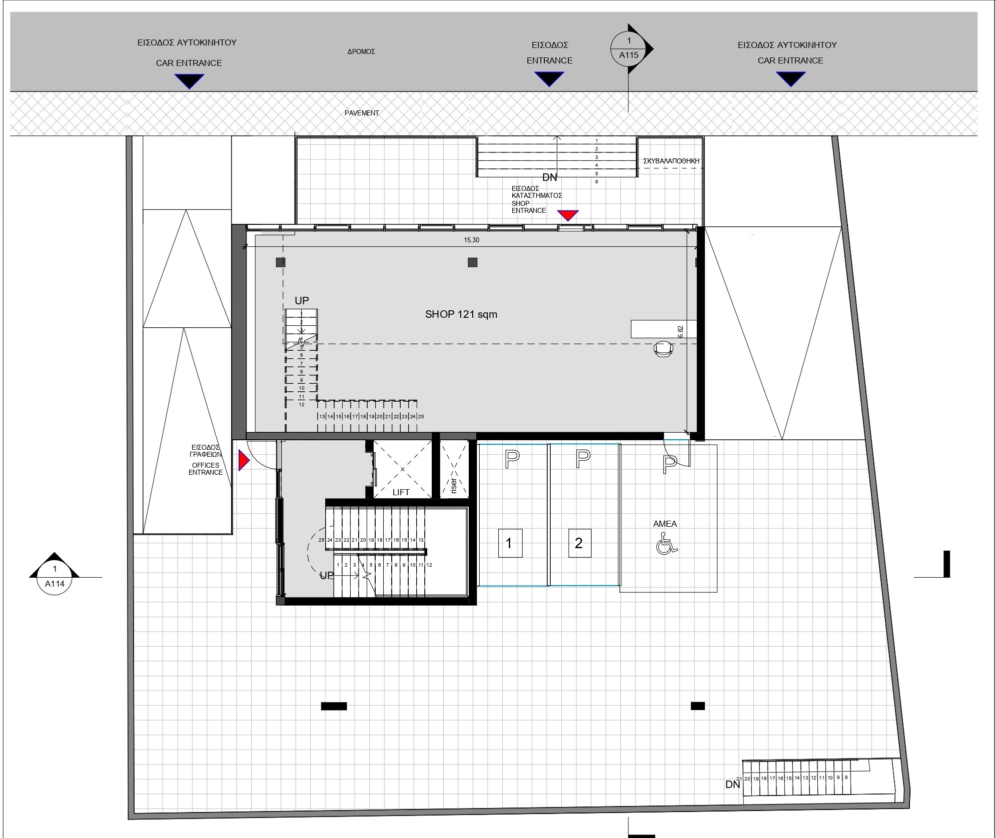
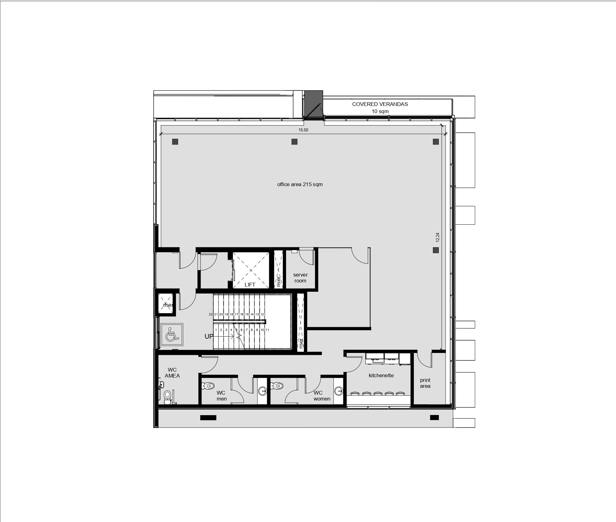
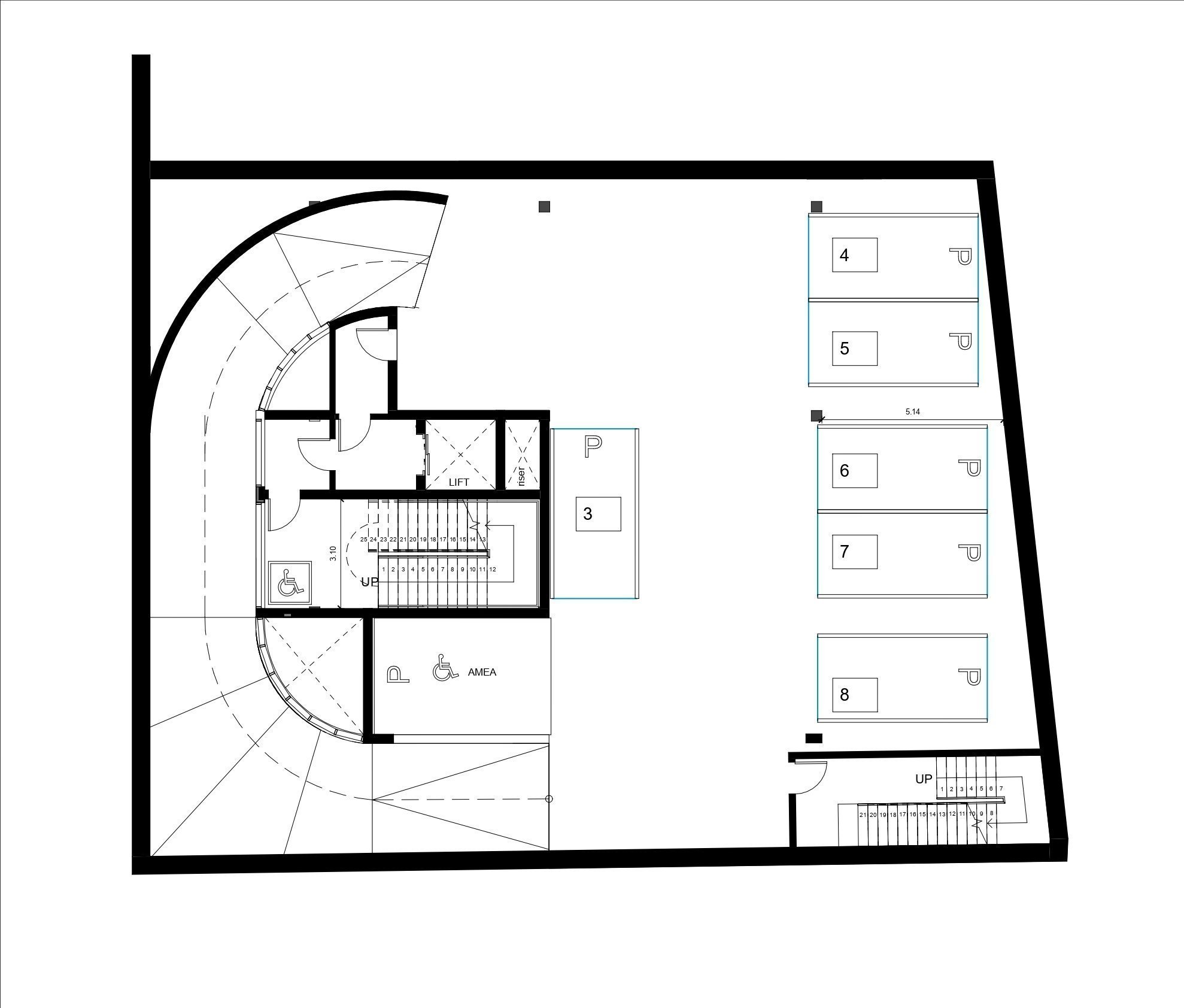
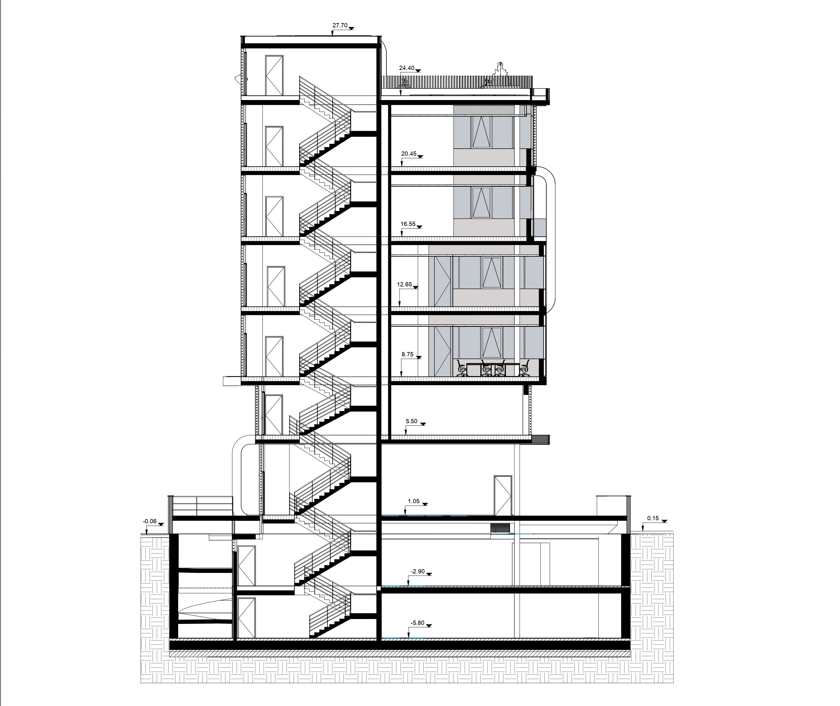
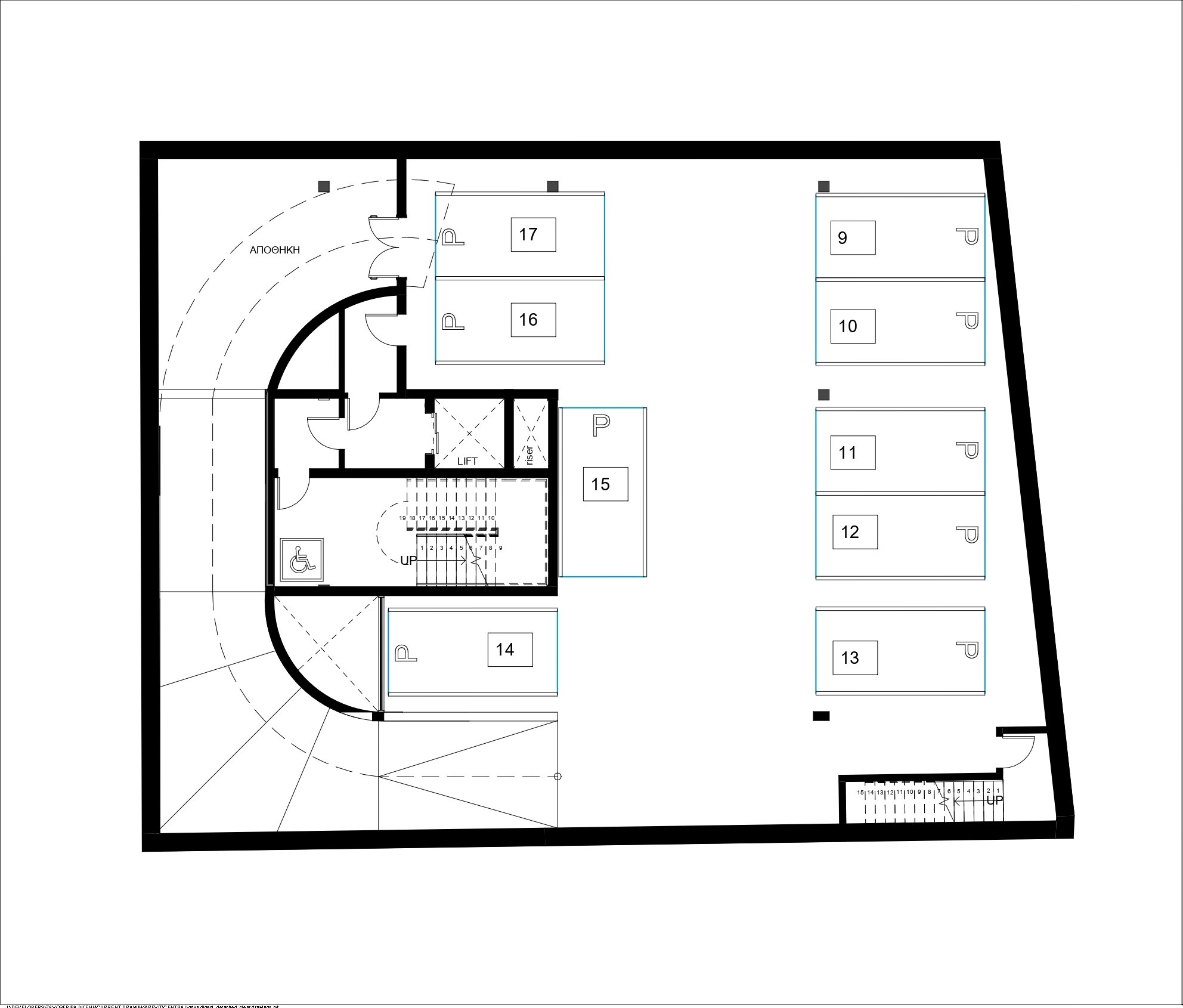
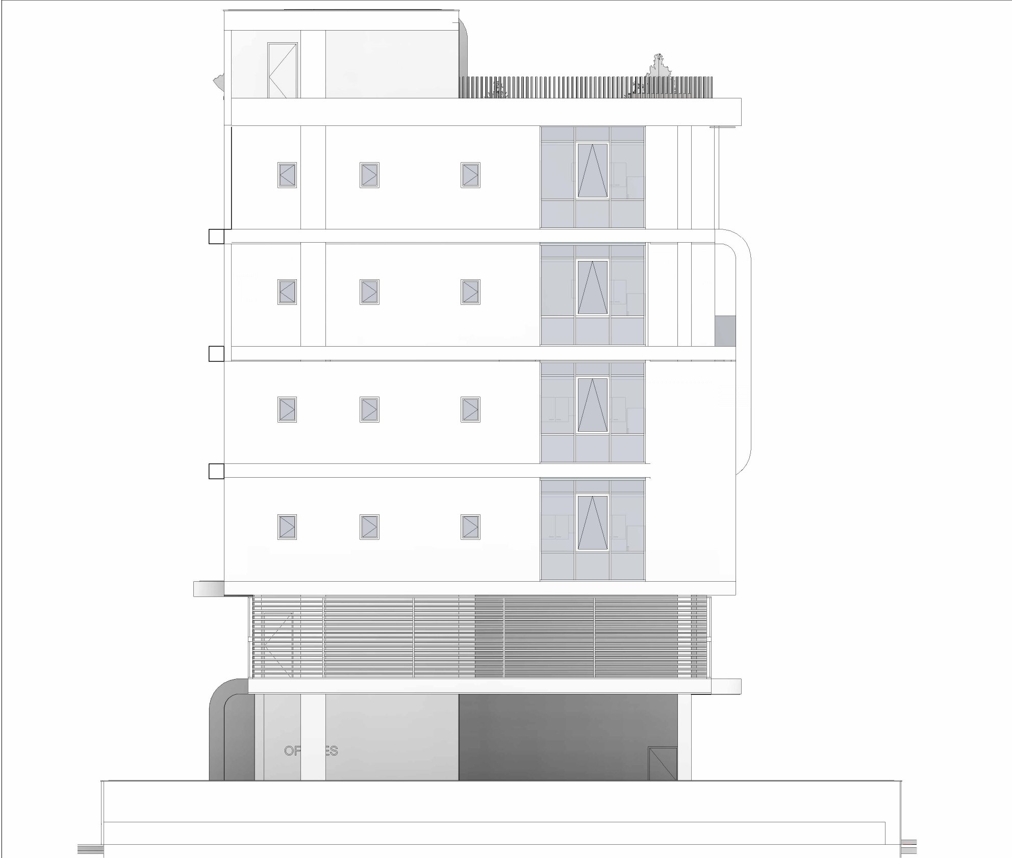
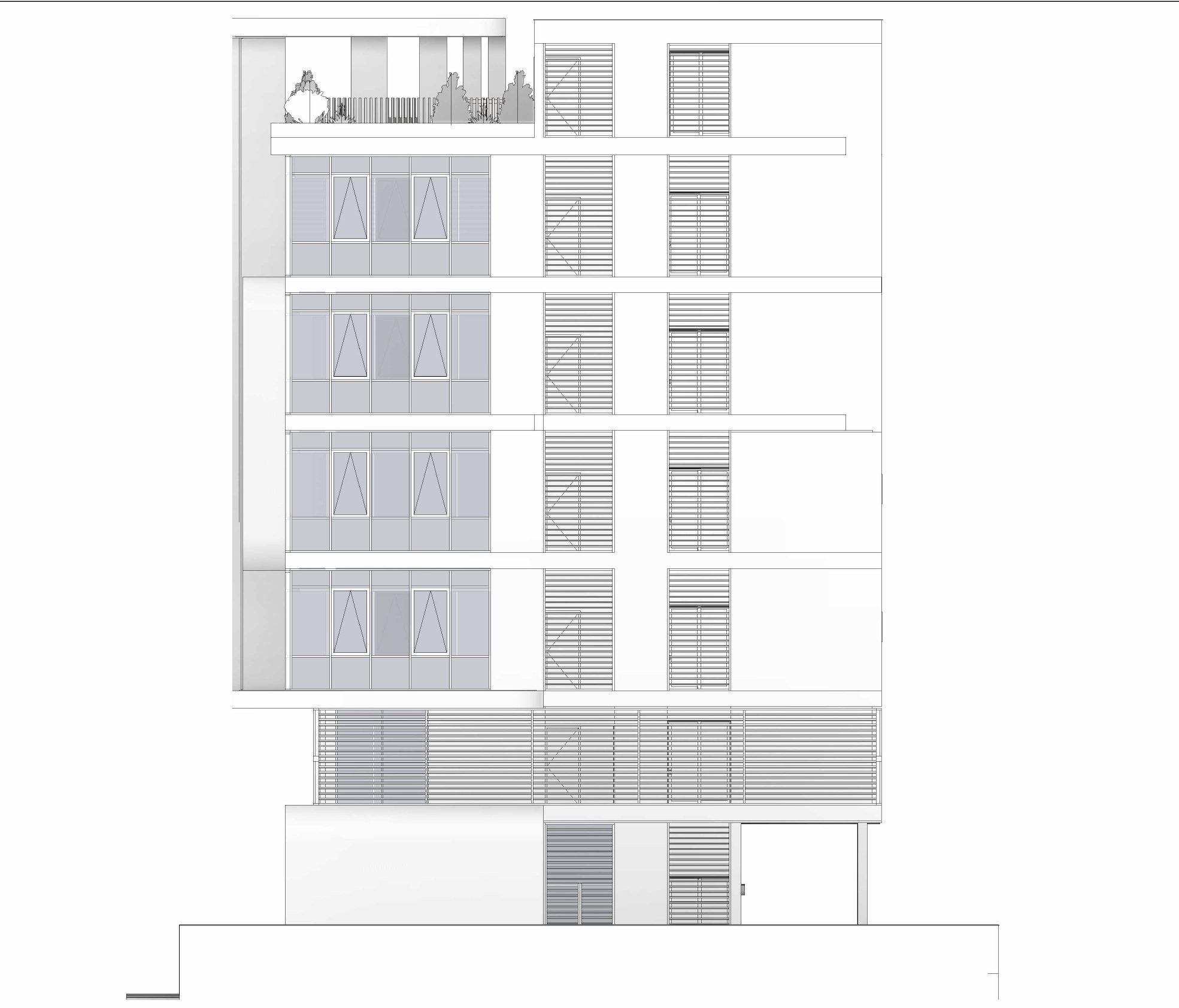
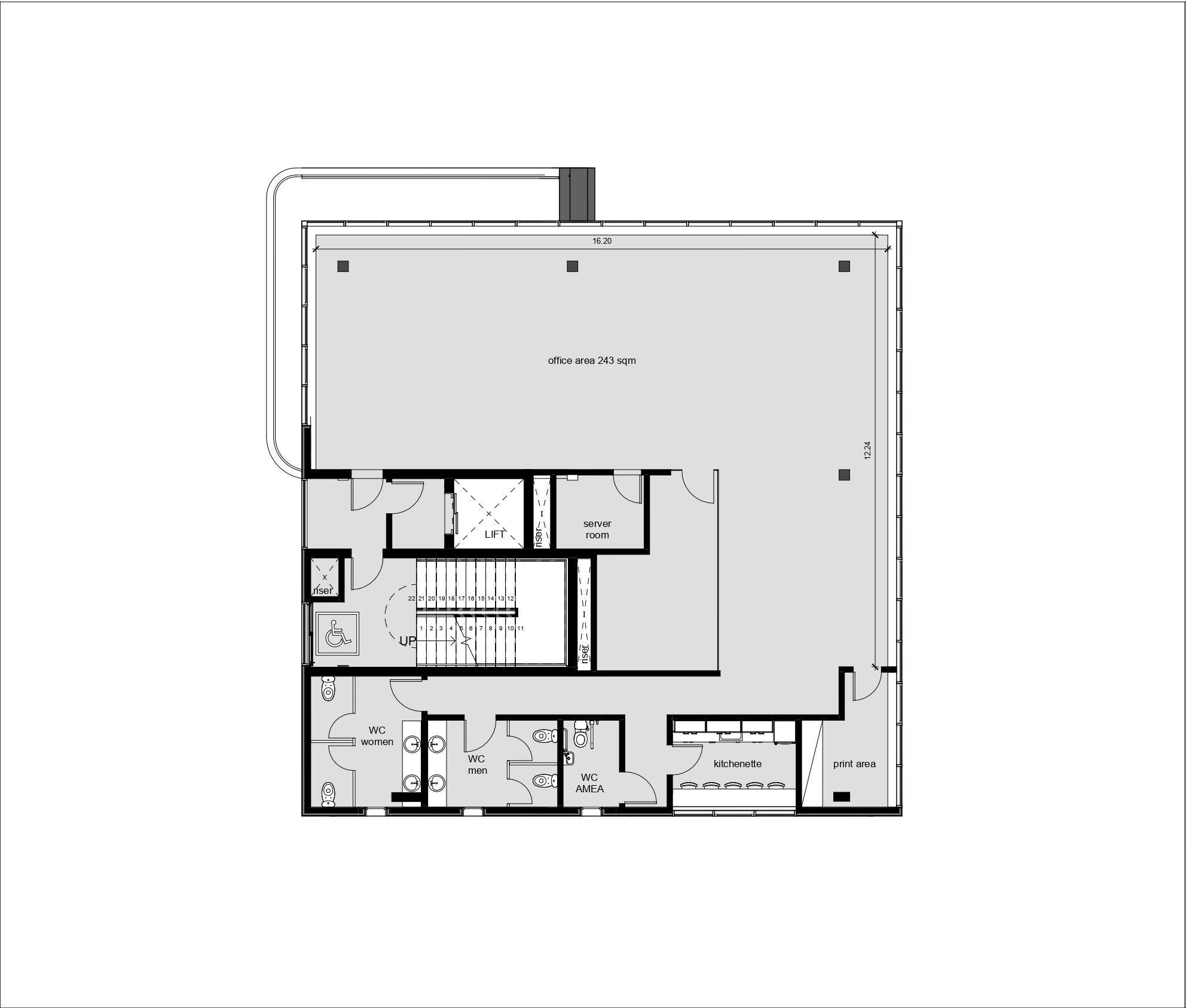
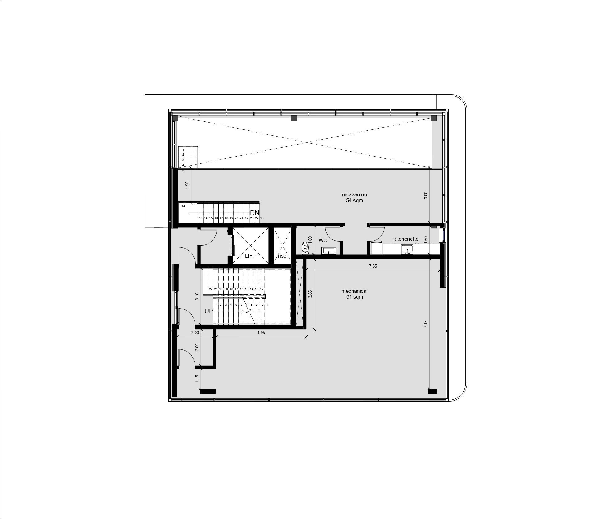
Στην καρδιά της πολυσύχναστης εμπορικής περιοχής της Λεμεσού, το Avenue Center είναι ένα σύγχρονο κτήριο που συνδυάζει στιλ και λειτουργικότητα. Προσφέρει έναν συνδυασμό από χώρους γραφείων και ένα κατάστημα λιανικής, όλα σχεδιασμένα με κομψά στοιχεία από γυαλί και μέταλλο. Το κτήριο περιλαμβάνει ένα μεγάλο κατάστημα στο ισόγειο, μεσώροφο, τέσσερις ορόφους γραφείων, καθώς και άνετο χώρο στάθμευσης στο ισόγειο και σε δύο υπόγεια. Με ευρύχωρες βεράντες και σύγχρονες παροχές, το Avenue Center προσφέρει τον ιδανικό χώρο για την ανάπτυξη και επιτυχία της επιχείρησής σας.

Ζητήστε Περισσότερες Πληροφορίες
Η διεύθυνση email σας δεν θα δημοσιευτεί. Τα υποχρεωτικά πεδία σημειώνονται με *
Δίνω τη συγκατάθεσή μου για την επεξεργασία των προσωπικών μου δεδομένων και αποδέχομαι τους όρους και τις προϋποθέσεις.